VINKO SMILJANEC
(403) 330-2333

AVISON YOUNG
403-330-3338

#20, 450 39 Street N
  Lethbridge , Alberta   T1H 0C8
Disclaimer - It is your responsibility to perform the appropriate due diligence to verify information provided by users or third parties on this website or in subsequent interactions. For more information see our website’s Terms of Use.
Data is supplied by Pillar 9™ MLS® System. Pillar 9™ is the owner of the copyright in its MLS® System. Data is deemed reliable but is not guaranteed accurate by Pillar 9™. The trademarks MLS®, Multiple Listing Service® and the associated logos are owned by The Canadian Real Estate Association (CREA) and identify the quality of services provided by real estate professionals who are members of CREA. Used under license.

#20, 450 39 Street N For Lease

$10
Lethbridge, Alberta

Transaction Type
For Lease
Days On Market
123
Lease Amount
10.00
Lease Frequency
Annually
Lease Term
Other
Zoning
I-G
Year Built
2021
Property Type
Commercial
Building Area (Sq. Ft.)
2767.00
Lot Size (Sq. Ft.)
130244

Listing ID: 33611
MLS ID: A2279874
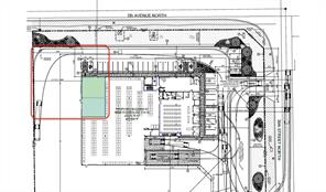
Located in the Churchill Industrial Park on the busy corner of5th Avenue North and 39th Street, this property has great exposure and easy access to 43rd Street. The adjacent business is Andrew Sheret Ltd., a well-established distributor of plumbing and heating supplies with a high volume of customer traffic. The unit itself, built in 2021, features a 10’ x 10’ overhead door, designated parking, gated yard space, and a floor drain. With 30-foot ceilings, an open floorplan, bathroom and utility room, this unit is ideal for a light industrial or business industrial user.
Transaction Type
For Lease
Title
Fee Simple
Days On Market
123
Lease Amount
10.00
Lease Frequency
Annually
Lease Term
Other
Lease Term Remaining
19
Sub Lease
1
Zoning
I-G
Subdivision
Churchill Industrial Park
Building Type
See Remarks
Year Built
2021
Structure Type
Industrial
Property Type
Commercial
Property Sub Type
Industrial
Legal Plan
2011364
Building Area (Sq. Ft.)
2767.00
Building Area (Sq. M.)
257.06
Lot Size (Sq. Ft.)
130244
Lot Size (Acres)
2.99
Inclusions
None.
Restrictions
None Known
Reports
Formal Lease

More Items You May Like

Here are some additional items that you may be interested in.

Get business tips straight to your inbox

Our team of industry experts has over 30 years of experience in business development. Get business tips and tricks for every stage of the business life cycle delivered straight to your inbox each week. You’ll also be the first to hear about new and updated listings in your searches.

Sign Up